ベビーカーもラクラク
シューズインクローク
置き場に困るベビーカーをシューズインクローゼットに収納できます。夫婦のゴルフバックもキレイに納まります。
「建売では物足りない」
「注文住宅は時間がかかる」
「費用を抑えたい」でも「満足したい」
PITTE(ピッテ)はそんなあなたにぴったりな規格住宅です。

Building price
税込1,680万円〜※1
※1 最も安値な「FREE!」の標準プランでオプションなし本体価格のみ
Monthly payment
月々49,000円台〜※2
※1 最も安値な「FREE!」の標準プランでオプションなし本体価格のみ※2 最も安値な標準プラン本体価格+概算付帯工事費+概算諸経費の合計金額 土地含まず
住宅ローン借入年数35年 変動金利0.435%の場合
シンプルにお得に、ライフスタイルに合わせて、セミオーダーで建てる規格型住宅。
それがサムラホームの「PITTE(ピッテ)」です。
一定の仕様ルールを設け、選ぶだけのセミオーダー型の打ち合わせで、
シンプルかつ合理化したことで高いコストパフォーマンスと
タイムパフォーマンスを実現しました。
玄関位置や屋根形状、オプションなどを選ぶことができ、お好みの仕様に簡単にカスタムすることができます。
選んでも価格が変わらなかったり、オプション金額も表示されているので、総額を把握しながら仕様を決めることができます。
仕様が決まっているので打ち合わせ期間が短く、注文住宅に比べておよそ4ヵ月間短縮され、お客様への負担も少なくなります。
床面積の申請条件さえ満たせば、他はそのままの仕様で長期優良住宅取得が可能な仕様になっております。
30年共に歩んできた業者様とのチームワークが生み出す高品質かつ精度の高い施工が弊社の自慢です。
瑕疵保証や地盤保証はもちろん、最大60年まで延長可能な長期保証もつきますので、住まわれてからでも安心です。
contact
あなたのライフスタイルに合わせて選べる
「PITTE(ピッテ)」の3つのプラン。
クリックでプランが切り替わります
画像タップで詳細が表示されます

税込1,900万円〜
「エブリ」は、家族との暮らしを楽しむために生まれた注文住宅です。
忙しい子育て世代に配慮した、使いやすい家事動線や間取りが特徴となっています。もちろん収納量も十分に確保しました。
将来のお子様の成長に合わせて間仕切りを自由に変更できるようフレシキブルなプランも可能です。

この価格は、標準プランでの建物本体のみの価格となっております。この価格には、土地・オプション・付帯工事、外構工事、ご融資に必要な諸経費等の費用は含まれておりません。
本資料の外観パースは、標準プランとは異なります。防火地域、準防火地域での建築の場合は、標準プランとは仕様と価格が異なります。
瑕疵保障10年、長期保証20年、地盤保障20年、確認申請に必要な費用等は含まれております。
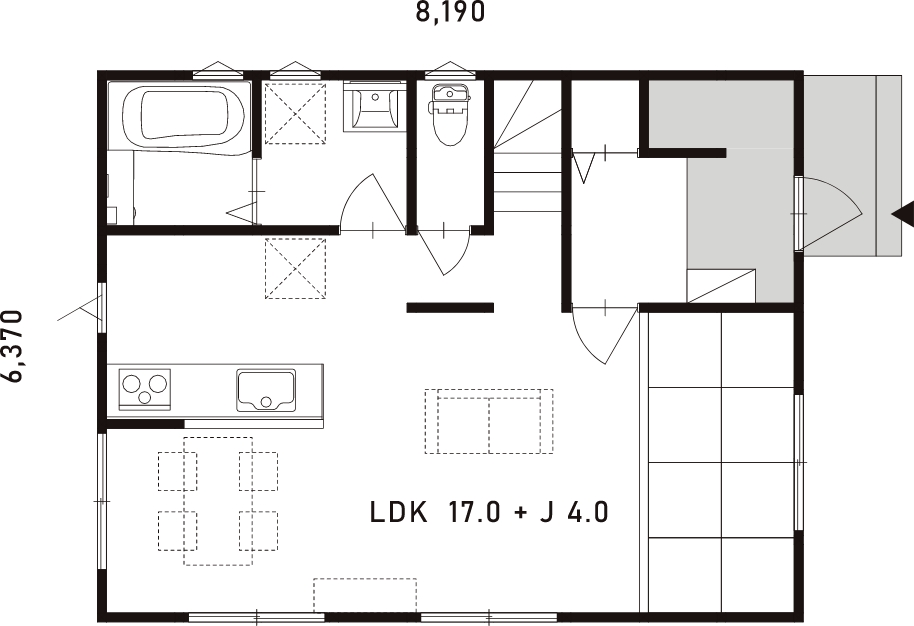
FLOOR PLAN


PROS
置き場に困るベビーカーをシューズインクローゼットに収納できます。夫婦のゴルフバックもキレイに納まります。
リビング越しにお庭まで見渡せるキッチン。小さいお子様のいる奥様にとって嬉しい配置。
かしこまった和室はいらないけど、ちょっとしたお茶飲みスペースが欲しいといった要望に応えた畳コーナー。
共働きのご夫婦に嬉しい屋根壁付きのバルコニー。急な雨でも急いで取り込む必要はありません。椅子を置いて寛ぎ空間にも。
2階の個室へ行くためには、必ずリビングを通らなければならないので、家族が自然と顔を合わせるようになります。
水廻りをまとめた動線設計で家事効率が高まり自分の時間や家族との時間を増やせます。
税込1,680万円〜
「フリー」は、アウトドアを楽しむために生まれた規格住宅です。
広々としたウッドデッキと繋げることができるプランになっています。
外と一体になる開放的なリビングダイニングで食事しやすいカウンターキッチン。吹き抜けからは明るい光が差し込みます。
2階は仕切りが一切ないワンフロアで、セカンドリビングとして、寝室として、趣味の場所として。
何もかもが自由に暮らすことができるのが特徴です。

この価格は、標準プランでの建物本体のみの価格となっております。この価格には、土地・オプション・付帯工事、外構工事、ご融資に必要な諸経費等の費用は含まれておりません。
本資料の外観パースは、標準プランとは異なります。防火地域、準防火地域での建築の場合は、標準プランとは仕様と価格が異なります。
瑕疵保障10年、長期保証20年、地盤保障20年、確認申請に必要な費用等は含まれております。
FLOOR PLAN


このプランの面積では長期優良住宅取得条件を満たしていません。
PROS
ゆったり広々としたリビングは上部が吹き抜けとなっており2階の開口部からの採光もしっかりと確保しています。
2階の個室へ行くためには、必ずリビングを通らなければならないので、家族が自然と顔を合わせるようになります。
水廻りをまとめた動線設計で家事効率が高まり自分の時間や家族との時間を増やせます。
大きめ吹き抜けを将来、子供が大きくなって部屋が必要になるタイミングに、床を張って子供部屋にもできるフレキシブルなプラン。
リビング越しにお庭まで見渡せるキッチン。小さいお子様のいる奥様にとって嬉しい配置。
2階の階段脇に設けた趣味コーナーは家族共有のパソコンを置いたり、書斎や図書スペースとして、使い方自由時自在です。

税込1,950万円〜
「レスト」は、ワンフロアで全ての動線が図れる間取りのため日常の家事や家族とのコミュニケーションの円滑性が最大限に高まります。
洗濯機から洗濯物干し場まで、玄関からキッチンまで、リビングから寝室までなど、暮らしにおける活動に階段を必要としないフラットな設計のため、平家住宅は無駄なストレスを感じることのない生活を維持できます。

この価格は、標準プランでの建物本体のみの価格となっております。この価格には、土地・オプション・付帯工事、外構工事、ご融資に必要な諸経費等の費用は含まれておりません。
本資料の外観パースは、標準プランとは異なります。防火地域、準防火地域での建築の場合は、標準プランとは仕様と価格が異なります。
瑕疵保障10年、長期保証20年、地盤保障20年、確認申請に必要な費用等は含まれております。
FLOOR PLAN

このプランの面積では長期優良住宅取得条件を満たしていません。
PROS
空間全体に光と風が行き渡り、快活にコニュニケーションを図るための暮らしの中心となるのが、平屋ならではのリビングです。
レストのリビングは、広々としたリビングで常に家族を感じながら、素敵な時間を堪能できる素敵な空間を生み出します。
住まいの中心にリビングがあるのが平屋の特徴です。リビングからどの部屋にもアクセスができ、無駄な動線を極力省くことで、ストレスを感じない暮らしを実現できます。
またこれらの特徴からバリアフリーの面を持ち、高齢になってからも安心して暮らすことができます。
第二のリビングとも言える広々としたウッドデッキ(オプション)リビングとひと続きのように連なるウッドデッキは外と内を繋ぎ、開放的なテラスリビングとしても使えたり、BBQやガーデニングなどにも幅広く活用できたりします。
接道や近隣など、敷地状況に合わせて玄関位置を選びます。
どの玄関位置を選んでも金額は一緒です。増額などはありませんのでご安心ください。
間取りの追加オプションもあり、思い描く暮らしに合わせた選択ができます。
玄関位置や建物配置、太陽光の有無に合わせてお好きな屋根形状を選ぶことができます。
どの屋根形状を選んでも金額は一緒です。増額などはありませんのでご安心ください。
外観の素材や、袖壁の有無などを選んで、お好みの外観にカスタムすることができます。
CGを使いながら、その場で確認することもできます。
より便利な設備へのグレードアップや、収納棚を追加するなど、快適な暮らしを叶えるオプションをご用意しています。
それらのオプションも金額がその場でわかりますので安心です。
お客さまの敷地形状や建物配置に合わせて、弊社がその場で付帯工事の金額を算出いたします。
敷地がまだ決まっていないお客さまでも、ここまでの建物金額からお客さまに最適な敷地金額を算出することができます。
お見積りが必要なオプションがあったり、詳しい敷地調査の結果、付帯工事の金額が変わる可能性がありますが、それ以外はこのままの金額となります。


間取りを選ぶことはできません。各シリーズごとに、1つの間取りとなります。
玄関位置の変更や、一部間仕切り壁の追加などのオプションで、ご要望に沿った間取りに一部変更することは可能です。
外壁を標準のガルバからサイディングに無料で変更することができます。
また、「IHコンロ+エコキュート」のオール電化設備を「ガスコンロ+エコジョーズ+ガス衣類乾燥機」に無料で変更することができます。
屋根の軒をなくす減額オプションもあります。
建築基準法と省エネ基準を満たす耐震性能と断熱性能になります。
もちろん、有料オプションにて仕様をランクアップすることも可能です。
もちろんです。むしろ土地を購入する前にご相談していただくことをお勧め致します。
お家を建てるうえで、土地と建物セットでの資金計画が大変重要になります。
くわしくはこちらをご覧ください。「土地からもご提案」
瑕疵保証や長期保証はもちろん、注文住宅と同様のアフターフォローをさせていただきます。くわしくはこちらをご覧ください。「建ててからのお付き合い」